신의 막내딸 아네모네 
윤수연 연출 | 2022  

중앙대학교 연극학과 제작공연 
제 10회 대전청년유니브 연극제 선정작 
Set Design
무대 디자인/제작
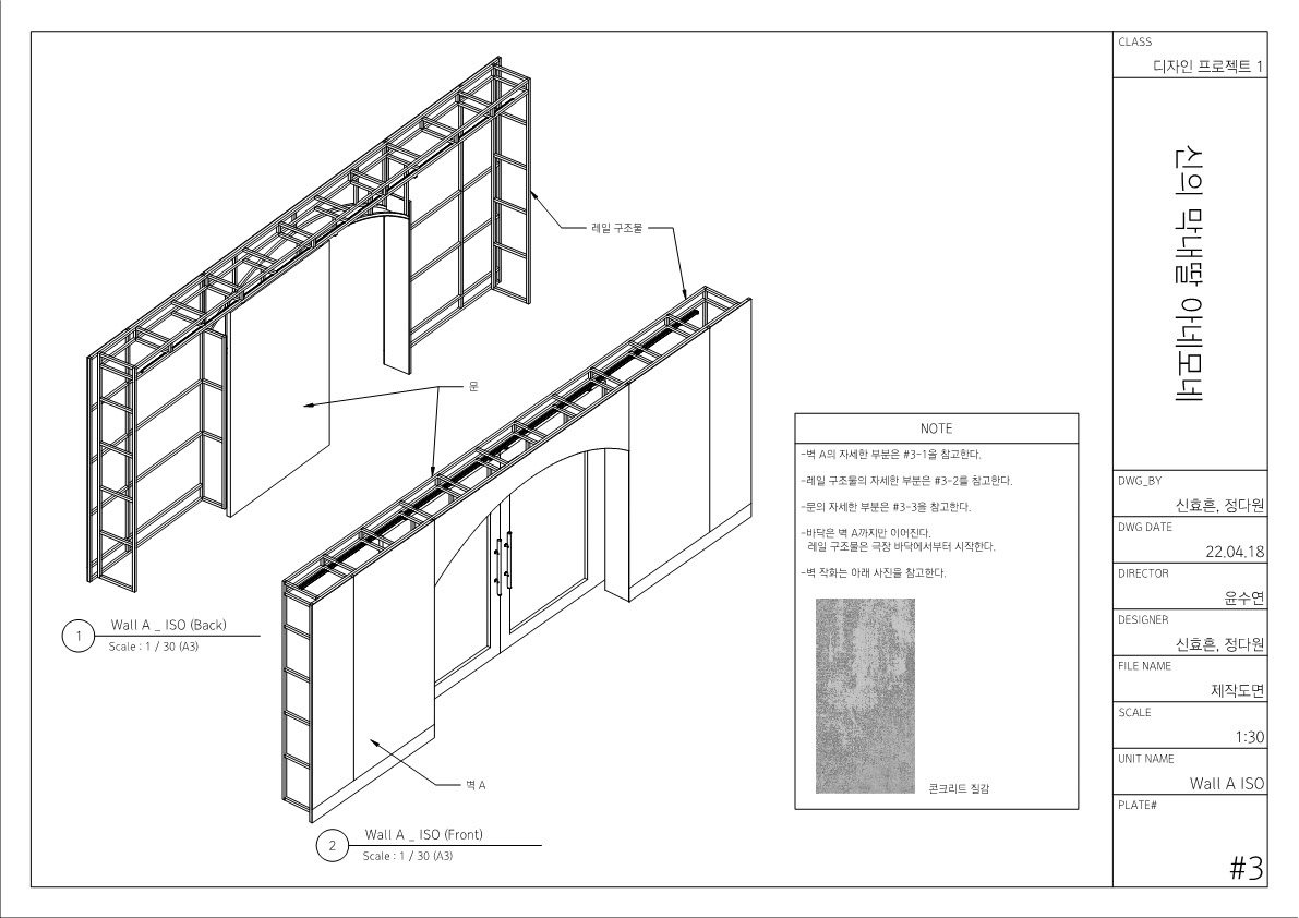
Blueprint
도면
 Miniature Modeling 
모델링
스케치업 모델링
스케치업 모델링
미니어처 모델링
미니어처 모델링

You may also like

Back to Top